ĮKELTI SKELBIMĄ
Rinka Logo
Pasirink miestą

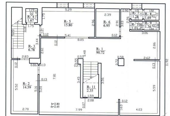
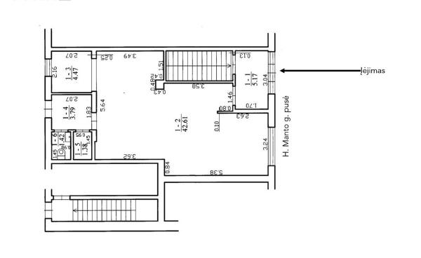
Parduodam 203 kv.m., patalpos H.Manto g. Klaipėdoje. Galima išperkamoji nuoma

Klaipėda | 2026 02 19 | Pažymėti skelbimą
290000,00 € Parduodam 203 kv.m., patalpos H.Manto g. Klaipėdoje. Galima išperkamoji nuoma-0
Peržiūrėti visas 2 nuotraukas
Visos nuotraukos (1/2)
Pastato aukštų skaičius:
4
Statybos metai:
1981
Kelintame aukšte:
1
Būklė:
suremontuotas
Bendras plotas, m²:
203
Kambarių skaičius:
4
Šildymas:
autonominis
Žemės sklypas:
1
Paskirtis:
administracinė, biurų, komercinė, paslaugų, prekybinė, rekreacinė, viešojo maitinimo, kita
Vietų automobiliams:
2
Pastato tipas:
mūrinis
Miestas / Rajonas:
Klaipėda
Mikrorajonas / Gyvenvietė:
Centras
Gatvė:
H. Manto g.

Parduodam 203 kv.m., patalpos H.Manto g. Klaipėdoje. Galima išperkamoji nuoma.
Patalpos per 2 aukštus:
Patalpų 1 aukštas turi vitrininį langą, erdvią lankytojų salę, 2 san. mazdus. Plotas: 61.43 kv.m.
Patalpos rūsyje yra uždaresnės su nuomininku. Plotas: 141.61 kv.m.
Išplanavimas funkcionalus, su erdvia lankytojų sale;
Gerai matoma vieta iš H.Manto g. pusės. Gausus praeinamas ir pravažiuojamas srautas;
Patalpos puikiai tinka investicijai - parduodamos su nuomininku.
Galima ir išperkamoji nuoma.
Kaina 290 000 eu.
Daugiau pasiūlymu Klaipėdoje ir informacijos +370 630 89808

Kaina: 290000,00 €
Peržiūrėta: 151 kartų
Kai Jūs skambinate ar rašote, nepamirškite paminėti, kad jūs radote šį skelbimą rinka.lt svetainėje
Kaina: 290000,00 €
Darius Darius
Nuo 2025 06 19
Pranešti apie skelbimą
Skambinti Rašyti SMS

Kiti vartotojo skelbimai

Parduodu Svencelėje du sklypus. Bendras plotas 54a.-0

Parduodu Klaipėdos r.Drevernos sen. Svencelėje netoli Kuršių marių du sklypus. Bendras plotas 54a. Paskirtis :vienbučių ir dvi bučių gyvenamųjų pastatų statybos. Puiki vieta gyventi ir kurti verslą....

315000,00 € Klaipėda Įkelta: 2026 04 07
Parduodamas 14,90 a sklypas pajūrio kvartale Karklėje Karklininkų g.-0

Parduodamas 14,90 a sklypas unikaliame pajūrio kvartale Karklėje Karklininkų g, (kvartalas vietinių dar vadinamas „Dobiliukai“). Sklypas kraštinis , tolėliau nuo Karklininkų gatvės ( apie 120 m.). Sk...

165000,00 € Klaipėda Įkelta: 2026 04 07
Parduodami Butai Šventojoje  1-2-3 kambarių-0

Parduodami Butai Šventojoje 1-2-3 kambarių Butai Plotai nuo 24 iki 58 kv.m. Kainos nuo 70 000€. Iki 119 000€. Daugiau informacijos ir kitų pasiūlymų Šventojoje +370 630 89808

75000,00 € Palanga Įkelta: 2026 04 03
Išperkamoji nuoma Klaipėdoje ir Klaipėdos raj.-0

Išperkamoji nuoma Klaipėdoje ir Klaipėdos raj. Naujojo Uosto g. Pirmame aukšte 371 – 160 – 211 kv.m. Kaina 1600 eu/kv.m. arba 1700 eu/kv.m. Antrame aukšte. Plotas 747 kv.m. Kaina 1500 eu./kv.m. H....

369000,00 € Klaipėda Įkelta: 2026 04 02
Parduodamas 30,11 arų sklypą Šlapšilės km, Žiburių g. 25. Klaipėdos raj-0

Parduodamas 30,11 arų sklypą Šlapšilės km, Žiburių g. 25. Klaipėdos raj. Sklypas prelimirariu vertinimu įvertintas 27 000 eu. Namų valda. Sklype yra Elektra. Kaina 13 900 eu. +37063089808

13900,00 € Klaipėdos r. Įkelta: 2026 04 02
Parduodamas 26 kv.m. Butas Šventojoje su +13 Terasa-0

Parduodamas jaukus ir pilnai įrengtas 26 kv. m butas su net +13 kv. m terasa, esantis 800 m. iki jūros. Butas ramioje ir patogioje Šventosios vietoje. Tai puikus pasirinkimas tiek poilsiui prie jūros,...

89999,00 € Palanga Įkelta: 2026 03 31
Parduodamas 78,71 kv.m. Trijų kambarių Butas miesto centre Gegužės g.-0

Parduodamas 78,71 kv.m. Trijų kambarių Butas miesto centre Gegužės g. Butas naujai nemontuojamas, bus šildomos grindys, nauja elektros instaliacija, nauji langai. Viskas nauja. Šiuo metu dar galite k...

194000,00 € Klaipėda Įkelta: 2026 03 31
Vidaus remonto darbai - plytelių klijavimas-0

Vidaus remonto darbai. Dirbame butuose, namuose, kotedžuose, komercinėse patalpose. Tinkavimas, špakliavimas, elektra, plytelių klijavimas, trinkelių klojimas ir t.t. Atliekame ir vidaus griovimo...

121,00 € Palanga Įkelta: 2026 03 20
370 kv.m. Sandėliavimo – Komercinės patalpos Klaipėdos raj. Klausmylių vs.-0

Parduodamos 370 kv.m. Sandėliavimo – Komercinės patalpos Klaipėdos raj. Klausmylių vs. Ragaišio g. Galima pirkti su išperkamąja nuoma. Šalia autostrada, išasfaltuoti kelia, geras susisiekimas. Van...

360000,00 € Klaipėdos r. Įkelta: 2026 03 19
Parduodamas Pastatas Klaipėdos centre Naujojo Uosto g. Plotas 844 kv.m.-0

Parduodamas Pastatas Klaipėdos miesto centre Naujojo Uosto g. Plotas 844 kv.m. 3 aukštai + mansarda. Sklypo plotas 9 arai. Pastato išorė pilnai renovuota. Vidus išgriautas ir paruoštas planuoti patalp...

1500000,00 € Klaipėda Įkelta: 2026 03 18
Parduodami butai Šventojoje-0

Parduodami butai Šventojoje !!! Šventojoje, naujos 25 - 67 kv. m. butų erdvės 1 - 2 - 3 kambarių, pilnai įrengti šviesūs ir jaukūs būstai su naujais virtuviniais baldais. Butų kainos nuo 1700 eur/...

74999,00 € Palanga Įkelta: 2026 03 17
Parduodamos 370 kv.m. Sandėliavimo – Komercinės patalpos Klaipėdos raj. Klausmylių vs. Ragaišio g.-0

Parduodamos 370 kv.m. Sandėliavimo – Komercinės patalpos Klaipėdos raj. Klausmylių vs. Ragaišio g. Šalia autostrada, išasfaltuoti kelia, geras susisiekimas. Naujai pastatytas pastatas. Visos komunik...

360000,00 € Klaipėdos r. Įkelta: 2026 03 13
Nuomojamos 95 kv.m. Administracinės patalpos S. Daukanto g / Gegužės g.-0

Nuomojamos 95 kv.m. Administracinės patalpos S. Daukanto g / Gegužės g. / Puodžių g. Pirmas aukštas, matoma vieta, darbuotojams nemokamas parkingas. Kaina tik 750€/mėn + GPM. Daugiau informacijos ir...

750,00 € Klaipėda Įkelta: 2026 02 24
Parduodamas KOTEDŽAS - EŽERO G. SLENGIAI-0

Naujas namas šalia Klaipėdos, prie tvenkinio, vos keli kilometrai nuo miesto. Parduodamas KOTEDŽAS - EŽERO G. SLENGIAI • Tai vieta, kurioje susilieja miesto artumas ir gamtos apsuptis. • Tai vieta,...

267444,00 € Klaipėda Įkelta: 2026 02 24
Nuomojami Sandėliai ir Gamybinės patalpos Klaipėdoje-0

Nuomojami Sandėliai ir Gamybinės patalpos Klaipėdoje Šilutės pl. 846 kv.m. 2700€ Šilutės pl. 208 kv.m. 730 Šilutės pl. 635 kv.m. 2040 Šilutės pl. 212 kv.m. 750 Šilutės pl. 1055 kv.m. 3300 Artoj...

700,00 € Klaipėda Įkelta: 2026 02 23
Nuomojamos 114,41 kv.m. Biuro patalpos Klaipėdos centre Liepų g.-0

Nuomojamos 114,41 kv.m. Biuro patalpos Klaipėdos centre Liepų g. Aukščiausios kokybės patalpos kapitaliai suremontuotame pastate su pilna apdaila. Šildymas – centralizuotas. Prieiga prie šviesolaid...

1602,00 € Klaipėda Įkelta: 2026 02 17
Nuomojamos 40 kv.m. Patalpos Birutės g.-0

Nuomojamos 40 kv.m. Patalpos Birutės g. Tinka sandėliavimui, dirbtuvei, ofisui. Galima įrengti kanalizacija su vandeniu. Kaina 200€/mėn. Daugiau informacijos ir kitų pasiūlymų Klaipėdoje telefonu +...

200,00 € Klaipėda Įkelta: 2026 02 16
Parduodamas Pastatas Klaipėdos miesto centre Naujojo Uosto g. Plotas 844 kv.m.-0

Parduodamas Pastatas Klaipėdos miesto centre Naujojo Uosto g. Plotas 844 kv.m. 3 aukštai + mansarda. Sklypo plotas 9 arai. Pastato išorė pilnai renovuota. Vidus išgriautas ir paruoštas planuoti pata...

1500000,00 € Klaipėda Įkelta: 2026 02 15
Išnuomojamos 100 ir 133 kv.m., prekybinės / administracinės / dirbtuvėms / paslaugų patalpos Naujoji Uosto g.-0

Išnuomojamos 100 ir 133 kv.m., prekybinės / administracinės / dirbtuvėms / paslaugų patalpos Naujoji Uosto g. Šildymas – centralizuotas. Prieiga prie šviesolaidžio. Vanduo ir elektra pagal skaitikl...

900,00 € Klaipėda Įkelta: 2026 02 14
Patalpų nuoma Klaipėdoje-0

Įvairių patalpų nuoma Klaipėdoje. Ofiso, salių, grožio, prekybinės, sandėliavimo, gamybinės patalpos. Kainos nuo 2€ iki 20€. Plotai nuo 15 kv.m, iki 2000 kv.m. Daugiau informacijos ir pasiūlymu Klaipė...

777,00 € Klaipėda Įkelta: 2026 02 12
Parduodamas 30,11 arų sklypą Šlapšilės km, Žiburių g. 25. Klaipėdos raj-0

Parduodamas 30,11 arų sklypą Šlapšilės km, Žiburių g. 25. Klaipėdos raj. Sklypas prelimirariu vertinimu įvertintas 27 000 eu. Namų valda. Sklype yra Elektra. Kaina 13 900 eu. +37063089808

13900,00 € Klaipėdos r. Įkelta: 2026 02 12
Nuomojamos Biuro patalpos centre Liepų g. Plotai 73,22 kv.m. 103,57 kv.m. 114,41 kv.m. 353,06 kv.m.-0

Išnuomojamos Administracinės patalpos centre Liepų g. Klaipėda Plotai 73,22 kv.m. 103,57 kv.m. 114,41 kv.m. 353,06 kv.m. Aukščiausios kokybės patalpos kapitaliai suremontuotame pastate su pilna apda...

1300,00 € Klaipėda Įkelta: 2026 02 11
Parduodamos 203 kv.m., patalpos H.Manto g. Klaipėdoje-0

Parduodamos 203 kv.m., patalpos H.Manto g. Klaipėdoje Patalpos per 2 aukštus: Patalpų 1 aukštas turi vitrininį langą, erdvią lankytojų salę, 2 san. mazdus. Plotas: 61.43 kv.m. Patalpos rūsyje yra u...

290000,00 € Klaipėda Įkelta: 2026 02 09
Parduodamas Pastatas Kretingos raj. Kurmaičių k. Yra Statybų Leidimas.-0

Parduodamas Pastatas Kretingos raj. Kurmaičių k. Mokyklos g. Yra Statybų Leidimas. Tad nusipirkę iškarto galite kibti į darbus. Bendras plotas 1884,73 kv.m. Sklypas 41,84 arai. Pastato paskirtis –...

277777,00 € Kretingos r. Įkelta: 2026 02 09
Nuomojamos 148 kv.m. Patapos Tiltų g. Klaipėdoje-0

Nuomojamos 148 kv.m. Patapos Tiltų g. Galima nuomotis dalimis 68 kv.m. ir 80 kv.m. Nuomojamos 80 kv.m. Patalpos Tiltų g. 1 aukšte Klaipėda. Yra vandens ir kanalizacijos įvadas. Tad tinka grožio veikl...

900,00 € Klaipėda Įkelta: 2026 02 06
Nuomojamos įvairios  patalpos Klaipėdoje-0

Nuomojamos patalpos Danės g. N. Uosto g. N. Sodo g. Šilutės pl. Giruliuose ir t.t. Klaipėda. Prekybai. Ofisams, Grožio procedūroms, Dirbtuvėms, Sandėliavimui, Gamybai, Garažai. Galimos kai kurių pat...

333,00 € Klaipėda Įkelta: 2026 02 05
Nuomojamos įvairios patalpos centre Naujoji Uosto g. Klaipėda-0

Nuomojamos įvairios patalpos centre Naujoji Uosto g. Klaipėda Pirmame aukšte 371 – 160 – 211 kv.m. Kaina nuo 6 eurų/kv.m. Atrame aukštas. Plotas 747 – 117 – 149 – 159 – 178 – 191 – 310 kv.m. Kaina 9...

1000,00 € Klaipėda Įkelta: 2026 02 04
Gargžduose Gamyklos g. Nuomojamos 52 kv.m, patalpos-0

Gargžduose Gamyklos g. Nuomojamos 52 kv.m, patalpos. 2 aukštas, šalia kelio, atskiras įėjimas. Graži aplinka, matoma vieta. Kaina 364€/mėn. Daugiau informacijos ir kitų pasiūlymų +370 630 89808

364,00 € Klaipėda Įkelta: 2026 01 21
Klaipėdoje Šilutės pl. Nuomojamos 846 kv.m. ploto patalpos Sandėliavimui - Gamybai-0

Klaipėdoje Šilutės pl. Nuomojamos 846 kv.m. ploto patalpos Sandėliavimui - Gamybai. 7 pakeliami vartais h4,25m. Patalų H 12m, nauja grindų danga, elektra 1f, 3f, parkavimas, šalia jei reikia yra biuru...

2700,00 € Klaipėda Įkelta: 2026 01 21
Išnuomojamos 100 kv.m. Sandėliavimo patapos Giruliuose Vasarotojų g.-0

Išnuomojamos 100 kv.m. Sandėliavimo patapos Giruliuose Vasarotojų g. Dvi patalpos 45 ir 60 kv.m. Dveji vartai 3/3 metrai. Kaina tik 350 eu/mėn. Daugiau informacijos ir kitų pasiūlymų Klaipėdoje +370...

350,00 € Klaipėda Įkelta: 2026 01 20
Parduodamas 14,96 arų sklypas Eketės g. Radailiai šalia Eketės tvenkinio-0

Parduodamas 14,96 arų sklypas Eketės g. Radailiai šalia Eketės tvenkinio. Sklypas su projektu statyti 2 namus, arba pakoregavus projektą galima statyti keturbutį po 130 kv.m. Kaina 65 000 eurai.

65000,00 € Klaipėdos r. Įkelta: 2026 01 19
Išnuomojamos administracinės patalpos nuo 20 kv.m, iki 70 kv.m. Šilutės pl. 103 Klaipėda-0

Išnuomojamos administracinės patalpos nuo 20 kv.m, iki 70 kv.m. Šilutės pl. 103 Klaipėda Kaina nuo 14 eu iki 15 eu už kv.m. Į kaina viskas įskaičiuota. Patalpų aprašymas: 2 - 3 aukštai. Viskas įs...

280,00 € Klaipėda Įkelta: 2026 01 15
Klaipėdoje Šilutės pl. Išnuomojamos 635 kv.m. ploto patalpos Sandėliavimui - Gamybai-0

Klaipėdoje Šilutės pl. Išnuomojamos 635 kv.m. ploto patalpos Sanėliavimui - Gamybai. 7 pakeliami vartais h4,25m. Patalų H 12m, nauja grindų danga, elektra 1f, 3f, parkavimas, šalia jei reikia yra biur...

2032,00 € Klaipėda Įkelta: 2026 01 13
Išnuomojamas 506 kv.m. Sandėlis Sandėlių g. Klaipėda-0

Išnuomojamas 506 kv.m. Sandėlis Sandėlių g. Klaipėda Sandėlis sausas yra ofiso patalpos, wc, dušas. Nėra rampos. Kaina 4 eurai/kv.m. 2024 eu/mėn. Daugiau informacijos ir kitų pasiūlymų Klaipėdoje...

2000,00 € Klaipėda Įkelta: 2026 01 13
Išnuomojamas 26 kv.m. Ofisas P. Komunos g. Klaipėda. Kaina tik 140€-0

Išnuomojamas 26 kv.m. Ofisas P. Komunos g. Klaipėda. Kaina tik 140€/mėn. + komunaliniai. 3 aukštas. Daugiau informacijos ir kitų pasiūlymų telefonu +370 630 89808

140,00 € Klaipėda Įkelta: 2026 01 07
Išnuomojamos sandėliavimo, gamybinės patalpos Artojo g. Klaipėdoje-0

Išnuomojamos sandėliavimo, gamybinės patalpos Artojo g. Klaipėdoje. Sausos, tvarkingos patalpos. Plotas 100 kv.m, Patalpų kaina tik 2.50 eurai/kv.m. + Agentūros mokestis 50 eu. Daugiau informacijos...

250,00 € Klaipėda Įkelta: 2026 01 07
Parduodamas 30,11 arų sklypą Šlapšilės km, Žiburių g. 25. Klaipėdos raj.-0

Parduodamas 30,11 arų sklypą Šlapšilės km, Žiburių g. 25. Klaipėdos raj. Sklypas prelimirariu vertinimu įvertintas 27 000 eu. Namų valda. Sklype yra elektra. Kaina 14 900 eu. +37063089808

14500,00 € Klaipėda Įkelta: 2025 12 22
Parduodamas Pastatas Kretingos raj. Kurmaičių k. Mokyklos g. Yra Statybų Leidimas-0

Parduodamas Pastatas Kretingos raj. Kurmaičių k. Mokyklos g. Yra Statybų Leidimas. Tad nusipirkę iškarto galite kibti į darbus. Bendras plotas 1884,73 kv.m. Sklypas 41,84 arai. Pastato paskirtis...

288000,00 € Kretinga Įkelta: 2025 12 19
Išnuomojamos 85 kv.m. Patalpos miesto centre Vytauto g.-0

Išnuomojamos 85 kv.m. Patalpos miesto centre Vytauto g. 24 Klaipėda Penktas aukštas yra liftas. Patalpos tiktu kaip ofisui, dirbtuvėms, sporto salei. Kaina 550 eu/mėn. 6500 eu/mėn. Šildymo metu. Vis...

550,00 € Klaipėda Įkelta: 2025 11 20
Išnuomojamos įvairios sandėliavimo, gamybinės patalpos Klaipėdoje-0

Išnuomojamos įvairios sandėliavimo, gamybinės patalpos Klaipėdoje. Plotai nuo 20 kv.m. Sandėliavimo 188 kv.m. 900 eu/mėn. Ofisas, kabinetas 26,52 kv.m. Kaina 133 eu/mėn. Tai pat turime sandėlių Bir...

900,00 € Klaipėda Įkelta: 2025 11 20
Išnuomojamos įvairios patalpos centre Naujoji Uosto g. Klaipėda-0

Išnuomojamos įvairios pilnai paruoštos patalpos centre Naujoji Uosto g. Klaipėda Pirmame aukšte 371 – 160 – 211 kv.m. Kaina nuo 6 eurų/kv.m. Antrame aukštas. Plotas 747 – 117 – 149 – 159 – 178 – 191...

999,00 € Klaipėda Įkelta: 2025 11 20
Parduodam 30,11 arų sklypą Šlapšilės km, Žiburių g. 25. Klaipėdos raj.-0

Šalia Gargždų, vos kelios minutės iki Klaipėdos. Parduodam 30,11 arų sklypą Šlapšilės km, Žiburių g. 25. Klaipėdos raj. Sklypas preliminariu įvertinmu įvertintas 27 000 eu. Namų valda. Sklype yra e...

15000,00 € Klaipėdos r. Įkelta: 2025 11 19
Parduodamas Pastatas Kretingos raj. Kurmaičių k. Mokyklos g. Bendras plotas 1884,73 kv.m.-0

Parduodamas Pastatas Kretingos raj. Kurmaičių k. Mokyklos g. Bendras plotas 1884,73 kv.m. Sklypas 41,84 arai. Pastato paskirtis – Pastatas – Bendrabutis – Valgykla. Esama situacija: Suprojektuotus...

288000,00 € Kretinga Įkelta: 2025 11 17
Parduodami du butai vienas šalia kito kurių bendras plotas 81,06 kv.m. Bokštų g.-0

Parduodami du butai vienas šalia kito kurių bendras plotas 81,06 kv.m. Bokštų g. centre. Butai parduodami tik abu. Šiai dienai butai negyvenami, reikalingas kapitalinis remontas (galėsit įsirengti p...

140000,00 € Klaipėda Įkelta: 2025 11 10
Parduodamas 78,71 kv.m. Trijų kambarių Butas miesto centre Gegužės g.  Klaipėda-0

Parduodamas 78,71 kv.m. Trijų kambarių Butas miesto centre Gegužės g. Butas naujai nemontuojamas, bus šildomos grindys, nauja elektros instaliacija, nauji langai. Viskas nauja. Šiuo metu dar galite...

219000,00 € Klaipėda Įkelta: 2025 11 07
Išnuomojamos įvairios pilnai paruoštos patalpos centre Naujoji Uosto g. Klaipėda-0

Išnuomojamos įvairios pilnai paruoštos patalpos centre Naujoji Uosto g. Klaipėda Pirmame aukšte 371 – 160 – 211 kv.m. Kaina nuo 6 eurų/kv.m. Antrame aukštas. Plotas 747 – 117 – 149 – 159 – 178 – 191...

1000,00 € Klaipėda Įkelta: 2025 11 04
Išnuomojamos 211 kv.m. Naujoji Uosto g. Pirmame aukšte-0

Išnuomojamos 211 kv.m. Naujoji Uosto g. Pirmame aukšte. Vitrininiai langai, miesto centras, šalia daug medicinos įstaigų, biurų. Didelis žmonių srautas. Bendras plotas 371 kv.m, kuriuos galima dalin...

1477,00 € Klaipėda Įkelta: 2025 11 01
Išnuomojamos 160 kv.m. Naujoji Uosto g. Pirmame aukšte-0

Išnuomojamos 160 kv.m. Naujoji Uosto g. Pirmame aukšte. Vitrininiai langai, miesto centras, šalia daug medicinos įstaigų, biurų. Didelis žmonių srautas. Bendras plotas 371 kv.m, kuriuos galima dalin...

1120,00 € Klaipėda Įkelta: 2025 11 01
Išnuomojamos 65 kv.m. Patalpos Puodžių g. Pirmame aukšte-0

Išnuomojamos 65 kv.m. Patalpos Puodžių g. Pirmame aukšte. Patalpos pilnai suremontuotos. Patalpos tinka grožio, foto studijai, ofisui ar prekybai. Kaina 600 eur. + Patarnavimai Daugiau parduoda...

600,00 € Kaina galutinė Klaipėda Įkelta: 2025 10 30
Parduodamos 65,78 kv.m. Patalpos – dirbtuvės Puodžių g. Pirmame aukšte-0

Parduodamos 65,78 kv.m. Patalpos – dirbtuvės Puodžių g. Pirmame aukšte. Patalpos pilnai suremontuotos. Patalpos tinka grožio, foto studijai, ofisui ar prekybai. Plotai: bendro naudojimosi 1,17 korid...

175000,00 € Klaipėda Įkelta: 2025 10 30
Parduodamas 25,7 kv.m. 1 kambario butas Debreceno g. 8-0

Parduodamas 25,7 kv.m. 1 kambario butas Debreceno g. 8. Trečias aukštas iš penkių. Pilnai suremontuotas. Kaina 54 000 eurai. Daugiau informacijos telefonu +370 630 89808

54000,00 € Klaipėda Įkelta: 2025 10 29
Nuomojamos biurų patalpos Naujoji Uosto g. Plotas 747 – 117 – 149 – 159 – 178 – 191 – 310 kv.m.-0

Išnuomojamos pilnai paruoštos biurų patalpos Naujoji Uosto g. 2 aukštas. Plotas 747 – 117 – 149 – 159 – 178 – 191 – 310 kv.m. Reguliuojamas vėdinimas/šildymas/šaldymas atskiromis zonomis: apšvietimas...

1300,00 € Klaipėda Įkelta: 2025 10 28
Nuomojamos 365,77 kv.m. Komercinės patalpos Naujoji Uosto g. 1 aukštas-0

Išnuomojamos 365,77 kv.m. Komercinės patalpos Naujoji Uosto g. Pirmas aukštas, 2 atskiri įėjimai, automatinės durys, vitrininiai langai. Patalpų šildymas – šaldymas, vėdinimas. Kaina 6 eurai/kv.m....

2194,00 € Klaipėda Įkelta: 2025 10 28
Parduodamas Pastatas Kretingos raj. Kurmaičių k. Mokyklos g.  Bendras plotas 1884,73 kv.m. Sklypas 41,84 arai-0

Parduodamas Pastatas Kretingos raj. Kurmaičių k. Mokyklos g. Bendras plotas 1884,73 kv.m. Sklypas 41,84 arai. Pastato paskirtis – Pastatas – Bendrabutis – Valgykla. Esama situacija: Suprojektuot...

292000,00 € Kretingos r. Įkelta: 2025 10 27
Nuomojamos 80 ir 68 kv.m. Patalpos Tiltų g. Senamiestyje Klaipėdoje 1 Aukštas-0

Nuomojamos 80 kv.m. Patalpos Tiltų g. 1 aukšte Klaipėda. Yra vandens ir kanalizacijos įvadas. Tad tinka grožio veiklai. Matoma vieta, šalia autobusu stotelė, didelis žmonių srautas. Kaina 800 eurai/mė...

650,00 € Klaipėda Įkelta: 2025 09 30
Nuomojamos 80 kv.m. Patalpos Tiltų g. 1 aukšte Klaipėdoje-0

Nuomojamos 80 kv.m. Patalpos Tiltų g. 1 aukšte Klaipėda. Yra vandens ir kanalizacijos įvadas. Tad tinka grožio veiklai. Matoma vieta, šalia autobusu stotelė, didelis žmonių srautas. Kaina 800 eurai/mė...

800,00 € Klaipėda Įkelta: 2025 09 29
Nuomojamos patalpos Vytauto g. Danės g. Šaulių g. Šilutės pl. Net Giruliuose ir t.t. Klaipėda-0

Nuomojamos patalpos Vytauto g. Danės g. Šaulių g. N. Uosto g. N. Sodo g. Šilutės pl. Net Giruliuose ir t.t. Klaipėda. Ofisams, grožio procedūroms, dirbtuvėms, sandėliavimui, gamybai, garažai. Daugia...

88,00 € Klaipėda Įkelta: 2025 09 29
Nuomojamos įvairios sandėliavimo, gamybinės patalpos Klaipėdoje. Plotai nuo 20 kv.m.-0

Išnuomojamos įvairios sandėliavimo, gamybinės patalpos Klaipėdoje. Plotai nuo 20 kv.m. Sandėliavimo 188 kv.m. 950 eu/mėn. Ofisas, kabinetas 26,52 kv.m. Kaina 133 eu/mėn. Prekybinė salė su sandėli...

950,00 € Klaipėda Įkelta: 2025 09 29
Išnuomojamos patalpos centre Vytauto g. 24 Klaipėda. Viskas Įskaičiuota-0

Išnuomojamos patalpos Vytauto g. 24 Klaipėda. Ofisams, grožio procedūroms, dirbtuvėms. Penktame aukšte. Yra liftas. 35 kv.m. Vasara 300 eu. Žiema 350 eu. Viskas įskaičiuota. ( Yra įrengta kriauklė...

300,00 € Klaipėda Įkelta: 2025 09 29
Parduodamos 148 kv.m. Patalpos Tiltų g. Klaipėdos senamiestyje. 1 aukštas-0

Parduodamos 148 kv.m. Patalpos Tiltų g. Klaipėdos senamiestyje. 1 aukštas. Patalpos yra atskirtos laikina pertvara per pusę ir buvo naudojamos skirtingoms veikloms, pusę patalpų prekybinė salė, kita p...

260000,00 € Klaipėda Įkelta: 2025 09 26
Parduodami 2 KOTEDŽAI - EŽERO G. SLENGIAI Klaipėda-0

Nauji namai šalia Klaipėdos, prie ežero, vos keli kilometrai nuo miesto. Parduodami 2 KOTEDŽAI - EŽERO G. SLENGIAI • Tai vieta, kurioje susilieja miesto artumas ir gamtos apsuptis. • Tai vieta, kur...

267444,00 € Klaipėdos r. Įkelta: 2025 09 25
Išnuomojamos sandėliavimo, gamybinės, dirbtuvės Giruliuose Vasarotojų g. Klaipėdoje-0

Išnuomojamos sandėliavimo, gamybinės, dirbtuvės Giruliuose Vasarotojų g. Klaipėdoje. Plotai nuo 15 kv.m. iki 250 kv.m. Pirmas, antras aukštai. Kainos nuo 2 eurų/kv.m, iki 5 eutų/kv.m. Daugiau inform...

100,00 € Klaipėda Įkelta: 2025 09 23
Išnuomojamos įvairios sandėliavimo, gamybinės patalpos Klaipėdoje-0

Išnuomojamos įvairios sandėliavimo, gamybinės patalpos Klaipėdoje. Plotai nuo 45 kv.m, iki 2000 kv.m. Ofisas, kabinetas 26,52 kv.m. Kaina 133 eu/mėn. Prekybinė salė su sandėliu 44,65 kv.m. Kaina 2...

950,00 € Klaipėda Įkelta: 2025 09 04
Parduodamos 365,77 kv.m. Patalpos Kavinės – prekybinės - ofiso Naujoji Uosto g.-0

Parduodamos 365,77 kv.m. Patalpos Kavinės – prekybinės - ofiso Naujoji Uosto g, pirmame aukšte. Biuru centre. Atskira apskaita vandens, elektros, šildymo ( reguliuojama ). 2 atskiri įėjimai, automatin...

549000,00 € Klaipėda Įkelta: 2025 09 04
Sandėliavimo, Gamybinių, Prekybinių, Administracinių patalpų nuoma Klaipėdoje-0

Sandėliavimo, Gamybinių, Prekybinių, Administracinių patalpų nuoma Klaipėdoje. Skambinkite mums ir mes surasime Jums tinkamas patalpas Klaipėdoje. +370 630 89808

777,00 € Klaipėda Įkelta: 2025 09 03
Išnuomojamos patalpos Vytauto g. 24 Klaipėda. Ofisams, grožio procedūroms, dirbtuvėms.-0

Išnuomojamos patalpos Vytauto g. 24 Klaipėda. Ofisams, grožio procedūroms, dirbtuvėms. Penktame aukšte. Yra liftas. 35 kv.m. Vasara 300 eu. Žiema 350 eu. Viskas įskaičiuota. ( Yra įrengta kriauklė...

300,00 € Klaipėda Įkelta: 2025 09 03
Išnuomojamos 80 kv.m. Patalpos miesto centre Vytauto g. 24 Klaipėda-0

Išnuomojamos 80 kv.m. Patalpos miesto centre Vytauto g. 24 Klaipėda Penktas aukštas yra liftas. Patalpos tiktu kaip ofisui, dirbtuvėms, sporto salei. Kaina 600 eu/mėn. 700 eu/mėn. Šildymo metu. Visk...

600,00 € Klaipėda Įkelta: 2025 09 03
Šventojoje parduodamas 3 kambarių 55 kv.m. Butas Mokyklos g.-0

Šventojoje parduodamas 3 kambarių 55 kv.m. Butas Mokyklos g. Ketvirtas aukštas, butas naujai remontuojamas. Langai į šiaure ir rytus. Šildymas oras – oras. Kaina 119 999 Eu. Agentūros mokestis sėkm...

119999,00 € Palanga Įkelta: 2025 09 03
Parduodamas 34 kv.m. Butas Šventojoje Mokyklos g.-0

Parduodamas 34 kv.m. Butas Šventojoje Mokyklos g. Cokolyje, šviesus, didelis langas į vakarinę puse. Pilnai įrengtas, virtuvinis, dušas, tualetas. Kaina 70 000 eurų. Tai pat parduodami ir 2 - 3 kamba...

70000,00 € Palanga Įkelta: 2025 07 30
Parduodamas 1 kambario butas Šventojoje Mokyklos g. 40-0

Parduodamas 1 kambario butas Šventojoje Mokyklos g. 40 Pilnai įrengtas, 3 aukštas. Bendrija, žiema neužsukamas vanduo, galima deklaruoti gyvenamaja vieta. Butų plotai nuo 23 kv.m., iki 67 kv.m. Š...

70000,00 € Palanga Įkelta: 2025 06 30
Išnuomojamos 49 kv.m. Patalpos, ofisui, grožio salonui, prekybai. Senamiestyje-0

Išnuomojamos 49 kv.m. Patalpos, ofisui, grožio salonui, prekybai. Senamiestyje Tiltų g. 1 aukštas. Vanduo, kanalizacija. Kaina 490 eu/mėn, plius patarnavimai. Daugiau informacijos ir kitų pasiūlymų...

490,00 € Klaipėda Įkelta: 2025 06 26
Išnuomojamos 103 kv.m. Patalpos Tilžės g. Klaipėda.-0

Išnuomojamos 103 kv.m. Patalpos Tilžės g. Klaipėda. Galima vykdyti sandėliavimo, gamybos, prekybos veiklą. Kaina 618 eu/mėn. + patarnavimai. +PVM Daugiau informacijos ir kitų pasiūlymu Klaipėdoje t...

618,00 € Klaipėda Įkelta: 2025 06 26
Išnuomojamos prekybai ir/ar administracinei veiklai tinkančios 99.08 m2 ploto patalpos adresu Šilutės pl. Klaipėda-0

Išnuomojamos prekybai ir/ar administracinei veiklai tinkančios 99.08 m2 ploto patalpos adresu Šilutės pl. Klaipėda. Patalpos yra patogioje, komerciškai patrauklioje vietoje. Šalia išvažiavimas į autom...

594,00 € Klaipėda Įkelta: 2025 06 26
Išnuomojamos 80 kv.m. Patalpos miesto centre Vytauto g. 24 Klaipėda-0

Išnuomojamos 80 kv.m. Patalpos miesto centre Vytauto g. 24 Klaipėda Penktas aukštas yra liftas. Patalpos tiktu kaip ofisui, dirbtuvėms, sporto salei. Kaina 650 eu/mėn. Vasaros sezonu. 700 eu/mėn. Ši...

650,00 € Klaipėda Įkelta: 2025 06 26
Išnuomojamos patalpos Vytauto g. Danės g. Šaulių g. N. Uosto g. N. Sodo g. Klaipėda.-0

Išnuomojamos patalpos Vytauto g. Danės g. Šaulių g. N. Uosto g. N. Sodo g. Klaipėda. Ofisams, grožio procedūroms, dirbtuvėms, sandėliaminui. Pirmame aukšte. 40 kv.m. 400€. Su atskiru iėjimu 21 kv....

222,00 € Klaipėda Įkelta: 2025 06 25
Parduodamos 203 kv.m., patalpos H.Manto g.-0

Parduodamos 203 kv.m., patalpos H.Manto g. Patalpos per 2 aukštus: Patalpų 1 aukštas turi vitrininį langą, erdvią lankytojų salę, 2 san. mazdus. Plotas: 61.43 kv.m. Patalpos rūsyje yra uždaresnės s...

290000,00 € Klaipėda Įkelta: 2025 06 23
Parduodamos 157 kv.m. Kavinės – prekybinės - ofiso patalpos Naujoji Uosto g.-0

Parduodamos 157 kv.m. Kavinės – prekybinės - ofiso patalpos Naujojo Uosto g, pirmame aukšte. Naujame biuru centre. Atskira apskaita vandens, elektros, šildymo ( reguliuojama ). Didelė požeminė ir ant...

235500,00 € Klaipėda Įkelta: 2025 06 23
Įvairių patalpų nuoma Klaipėdoje-0

Įvairių patalpų nuoma Klaipėdoje. Ofiso, salių, grožio, prekybinės, sandėliavimo, gamybinės patalpos. Kainos nuo 3€ iki 17€. Plotai nuo 15 kv.m, iki 1000 kv.m. Daugiau informacijos ir pasiūlymu Klaipė...

777,00 € Klaipėda Įkelta: 2025 06 23
Išnuomojamos 2260 kv.m. Gamybos ir sandėliavimo patalpos Šilutės pl.-0

Išnuomojamos 2260 kv.m. Gamybos ir sandėliavimo patalpos Šilutės pl. Tinka įvairaus tipo gamybai, metalo, medienos, stiklo, akmens – plytelių apdirbimui ir pan., taip pat sandėliavimui. 2260 kv.m. Kai...

6330,00 € Klaipėda Įkelta: 2025 06 23
Parduodami 2 KOTEDŽAI - EŽERO G. SLENGIAI KLAIPĖDA-0

Nauji namai šalia Klaipėdos, prie ežero, vos keli kilometrai nuo miesto. Parduodami 2 KOTEDŽAI - EŽERO G. SLENGIAI • Tai vieta, kurioje susilieja miesto artumas ir gamtos apsuptis. • Tai vieta, kur...

267444,00 € Klaipėda Įkelta: 2025 06 19
Padruodamas 1 kambario butas Šventojoje Mokyklos g. 40-0

Padruodamas 1 kambario butas Šventojoje Mokyklos g. 40 Pilnai įrengtas, 3 aukštas. Bendrija, žiema neužsukamas vanduo, galima deklaruoti gyvenamaja vieta. Butų plotai nuo 23 kv.m., iki 67 kv.m. Š...

70000,00 € Palanga Įkelta: 2025 06 19
Parduodamas 3 kambarių 58 kv.m. Butas Mokyklos g. Šventojoje-0

Parduodamas 3 kambarių 58 kv.m. Butas Mokyklos g. Šventojoje. Puiki vieta Jūsų poilsiui ar gyvenimui. Kaina 99 000 eu. Pilna apdaila, naujas virtuvinis komplektas. Tai pat parduodami ir mažesnių ir...

99000,00 € Palanga Įkelta: 2025 06 19
Parduodamas 3 kambarių 67 kv.m. Butas Mokyklos g. Šventojoje-0

Parduodamas 3 kambarių 67 kv.m. Butas Mokyklos g. Šventojoje. Puiki vieta Jūsų poilsiui ar gyvenimui. Kaina 120 000 eu. Pilna apdaila, naujas virtuvinis komplektas. Tai pat parduodami ir mažesni 1 -...

120000,00 € Palanga Įkelta: 2025 06 19
Išnuomojamos patalpos Vytauto g. 24 Klaipėda. Ofisams, grožio procedūroms, dirbtuvėms-0

Išnuomojamos patalpos Vytauto g. 24 Klaipėda. Ofisams, grožio procedūroms, dirbtuvėms. Penktame aukšte. Yra liftas. 35 kv.m. Vasara 300 eu. Žiema 350 eu. Viskas įskaičiuota. ( Yra įrenkta kriauklė...

300,00 € Klaipėda Įkelta: 2025 06 19
Filtruoti Nuimti filtrus